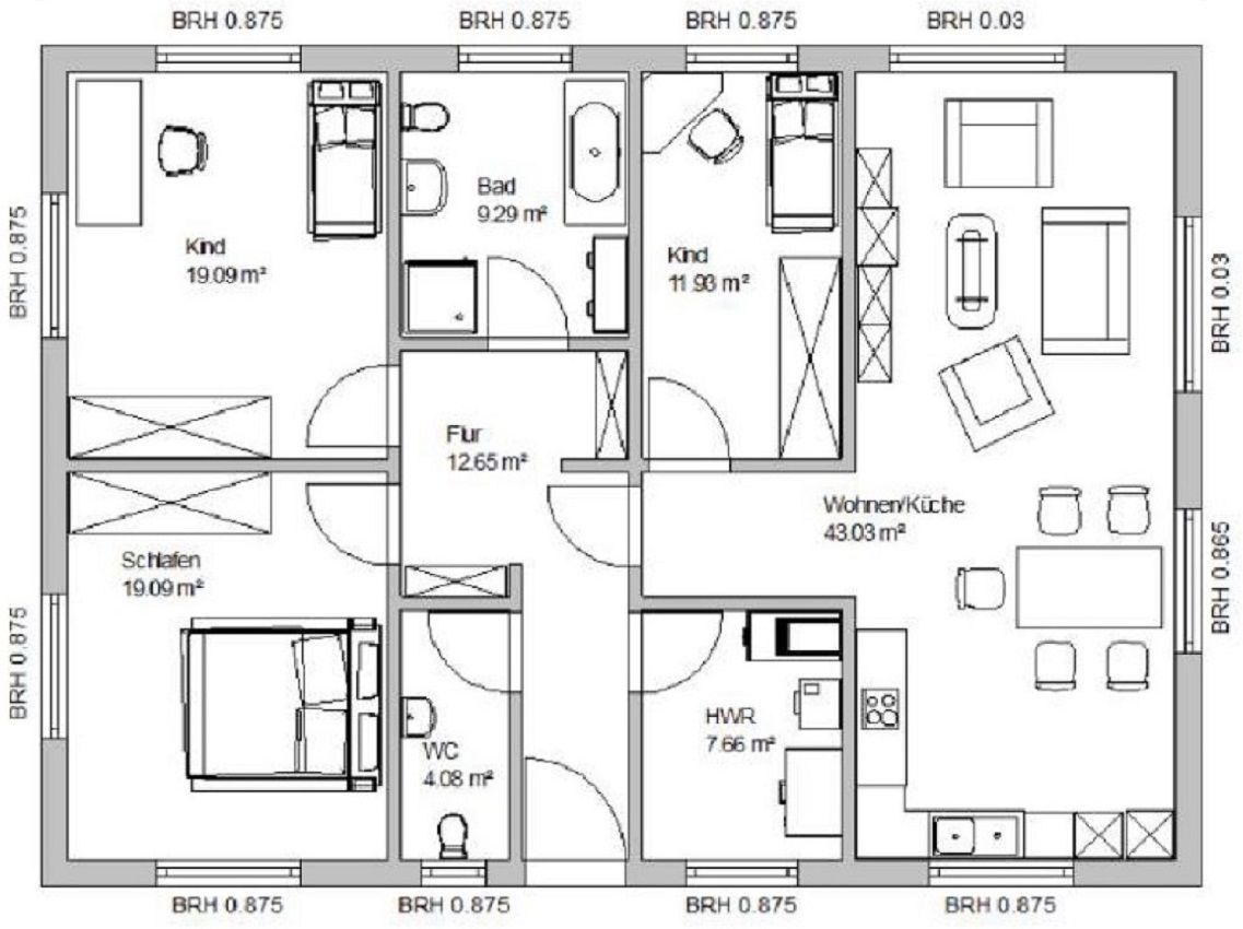
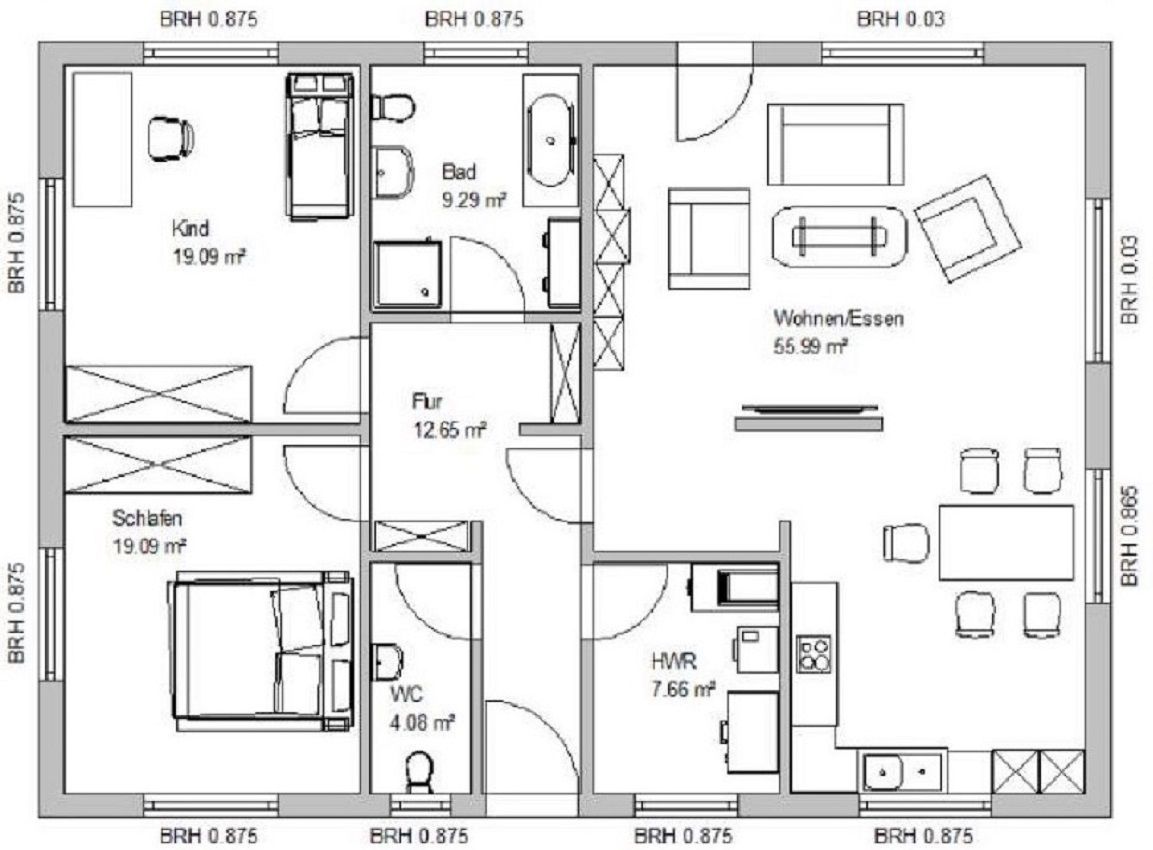
Standardtyp 2 "Barierrefreier Bungalow" in Energieeffizienz-Bauweise EH 40
als Selbstbau-Rohbauhaus oder als Selbstbau-Ausbauhaus
Wohnfläche ca. 128 m²
Selbstbau-Rohbauhaus nur 139.975 € inklusive Mwst. Selbstbau-Ausbauhaus nur 245.975 € inkl. MwSt.
jeweils ab Oberkante Bodenplatte oder Kellerdecke















